
MORRISBURG – Storefront parking will become a thing of the past with the redevelopment of the Morrisburg Plaza slated to take place in 2026.
Greer Galloway, the consultants hired to complete the design were at the December 10 council meeting to present the preliminary design to council.
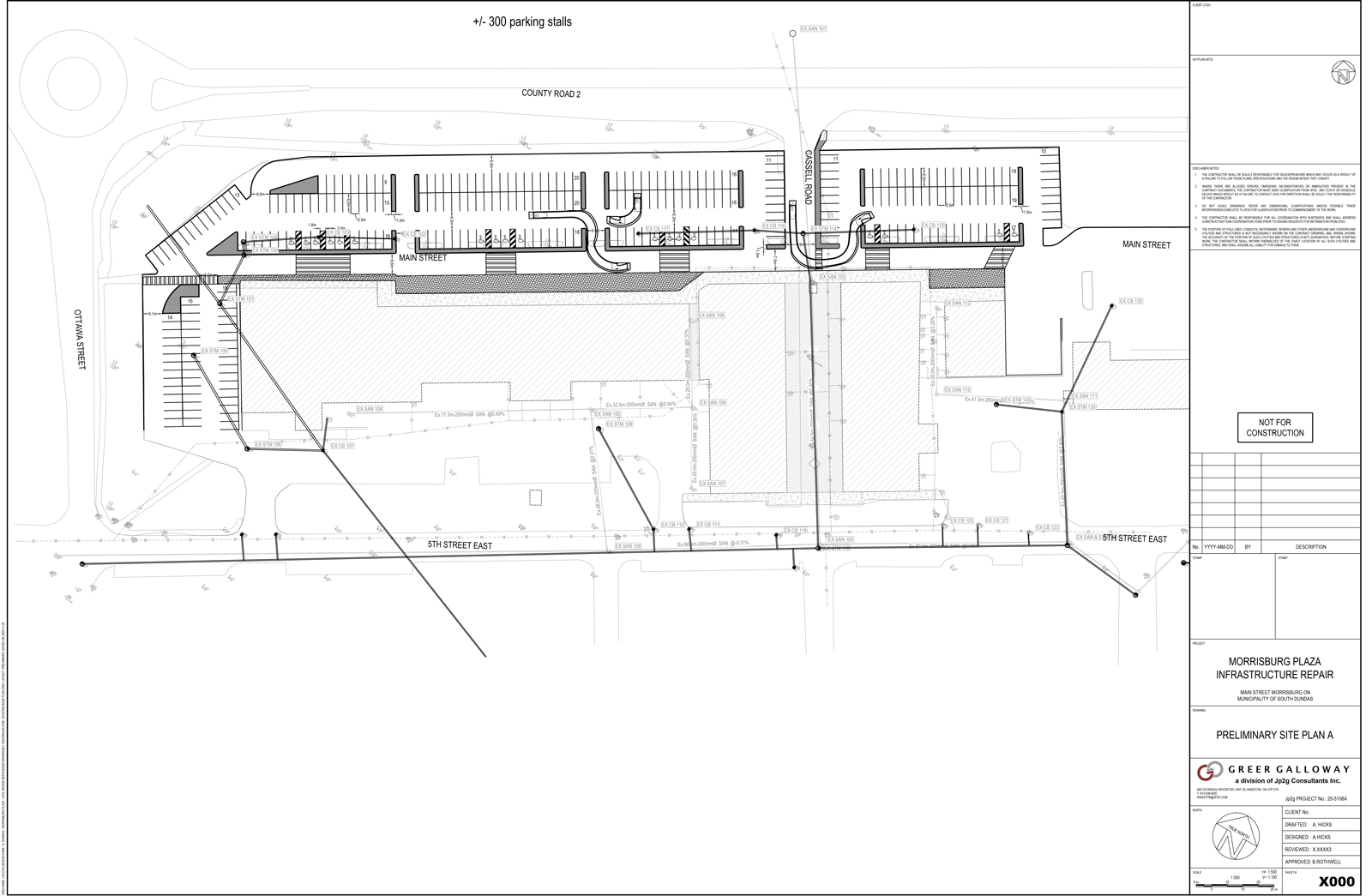
According to the presentation: “This design brief outlines a preliminary concept aimed at improving site functionality, accessibility, and long-term infrastructure performance.
The proposed design includes enhancements to parking layout and circulation, upgrades to sidewalks and accessibility features, reconfiguration of storm water infrastructure, and modernization of site lighting and electrical servicing.”
Two parking lot designs were presented with the majority of council choosing to go with design A configuration which would give the site almost 300 parking spaces.
It’s a big change when people are used to 75 years of parking one way,” said South Dundas Councillor Tom Smyth.
“I don’t think there should be storefront parking,” said Councillor Danielle Ward. “I’ve seen the hazard of it.”
While council agreed to the overall layout, they asked staff to organize a meeting in early January to present the plan to the stakeholder businesses for feedback.
Looking for feedback on aesthetic design elements such as sidewalk surfaces, lighting preferences and a replacement feature for the deteriorated clock tower will likely be discussed at that meeting.
“The preliminary designs for the Morrisburg Village Plaza parking lot establish a foundation for improving site functionality, safety, and infrastructure,” said project manager Brittany Rothwell. “The concepts presented aim to address current deficiencies by enhancing traffic flow, accessibility, drainage, and lighting.”
A ‘Cost D’ estimate will be part of the next phase as the parking lot layout is refined, utility locations confirmed and lighting fixtures selected.
“Overall, the preliminary plan provides a clear path forward for a modernized, functional parking
lot that meets the long-term needs of the plaza and its users,” concluded Rothwell.
Discover more from Morrisburg Leader
Subscribe to get the latest posts sent to your email.
